当期目录
显示方式:
2025,
20(4):
697-716. doi: 10.11899/zzfy20250165
摘要:
数十年间,地震学家及地震工程学家通力合作,为包括地震构造特征、地震活动性、震源特性、地震动预测模型及场地效应等多个关键问题的解决提供了支撑,形成了地球科学与工程科学交叉融合的具有独特性的工程地震学科,并取得了系统的应用性研究成果。作为工程地震学重要分支的强震动地震学得到了迅猛发展,为地震区划和工程抗震研究奠定了坚实基础,为城乡建设和核电、交通、能源等多类型行业的发展提供了地震安全保障。近年来,随着算力、算法及算料(数据)等人工智能关键要素的大力发展,进一步实现强震动地震学与信息学科交叉成为可能,也迅速成为本领域的热点问题。本文首先分析了强震动地震学研究进展与关键问题,探讨了其与人工智能交叉的框架。而后从知识嵌入、数据-知识融合及知识发现3个层面,综述了行业研究成果,重点介绍:(1)地震波动相关的控制方程与边界、初始条件物理嵌入理论与求解方法;(2)数据与物理机制联合驱动的人工智能地震动模型构建理论与方法;(3)强震动人工智能生成模型等。最后,讨论了目前强震动地震学与人工智能研究亟须解决的关键问题,并对未来的发展方向进行了展望。
数十年间,地震学家及地震工程学家通力合作,为包括地震构造特征、地震活动性、震源特性、地震动预测模型及场地效应等多个关键问题的解决提供了支撑,形成了地球科学与工程科学交叉融合的具有独特性的工程地震学科,并取得了系统的应用性研究成果。作为工程地震学重要分支的强震动地震学得到了迅猛发展,为地震区划和工程抗震研究奠定了坚实基础,为城乡建设和核电、交通、能源等多类型行业的发展提供了地震安全保障。近年来,随着算力、算法及算料(数据)等人工智能关键要素的大力发展,进一步实现强震动地震学与信息学科交叉成为可能,也迅速成为本领域的热点问题。本文首先分析了强震动地震学研究进展与关键问题,探讨了其与人工智能交叉的框架。而后从知识嵌入、数据-知识融合及知识发现3个层面,综述了行业研究成果,重点介绍:(1)地震波动相关的控制方程与边界、初始条件物理嵌入理论与求解方法;(2)数据与物理机制联合驱动的人工智能地震动模型构建理论与方法;(3)强震动人工智能生成模型等。最后,讨论了目前强震动地震学与人工智能研究亟须解决的关键问题,并对未来的发展方向进行了展望。
2025,
20(4):
717-728. doi: 10.11899/zzfy20250146
摘要:
为探索和建立适用于我国的现地峰值加速度(PGA)预测模型,以及提高现地PGA预测的可靠性,本研究提出了一种基于时空图神经网络的现地PGA预测模型(TSGNN-PGA),并采用中国强震数据对TSGNN-PGA模型进行训练和测试。结果表明:P波触发后3 s,和Pd-PGA方法相比,TSGNN-PGA模型对于PGA预测有更小的平均绝对误差(MAE)和标准差(STD),以及更大的决定系数,且分别为0.205、0.261和0.688;同时,和Pd-PGA方法相比,在不同的震中距、震级和信噪比范围下,TSGNN-PGA模型对于PGA预测有更小的MAE和STD,这意味着TSGNN-PGA模型对于震中距、震级和信噪比的敏感性更弱,且受影响更小。此外,在漾濞6.4级地震、芦山6.1级地震和积石山6.2级地震中,与Pd-PGA方法相比,TSGNN-PGA模型对于PGA预测表现出更强的鲁棒性。由此推断TSGNN-PGA模型在一定程度上可以提高我国现地PGA预测的可靠性,且对于地震预警有着重要意义。
为探索和建立适用于我国的现地峰值加速度(PGA)预测模型,以及提高现地PGA预测的可靠性,本研究提出了一种基于时空图神经网络的现地PGA预测模型(TSGNN-PGA),并采用中国强震数据对TSGNN-PGA模型进行训练和测试。结果表明:P波触发后3 s,和Pd-PGA方法相比,TSGNN-PGA模型对于PGA预测有更小的平均绝对误差(MAE)和标准差(STD),以及更大的决定系数,且分别为0.205、0.261和0.688;同时,和Pd-PGA方法相比,在不同的震中距、震级和信噪比范围下,TSGNN-PGA模型对于PGA预测有更小的MAE和STD,这意味着TSGNN-PGA模型对于震中距、震级和信噪比的敏感性更弱,且受影响更小。此外,在漾濞6.4级地震、芦山6.1级地震和积石山6.2级地震中,与Pd-PGA方法相比,TSGNN-PGA模型对于PGA预测表现出更强的鲁棒性。由此推断TSGNN-PGA模型在一定程度上可以提高我国现地PGA预测的可靠性,且对于地震预警有着重要意义。
2025,
20(4):
729-738. doi: 10.11899/zzfy20250124
摘要:
基于简单线性关系的分析方法在表征地震动影响因素时,往往导致预测结果与实测数据存在显著偏差。为克服这一局限性,本文基于生成式神经网络无需依赖先验地震学知识即可自动提取特征并生成完整地震动时程的优势,系统评估了3种典型生成式神经网络模型(变分自编码器VAE、生成对抗网络GAN和去噪扩散概率模型DDPM)在地震动模拟中的性能表现。研究采用PEER数据库中的1 451条水平向地震动记录(源自23次独立地震事件)作为训练数据集,对3种模型进行统一训练和对比分析。模拟结果时域和频域的综合评估结果表明,3种模型中DDPM展现出最优的模拟性能,GAN次之,而VAE表现相对欠佳。值得注意的是,GAN模拟结果呈现出显著的长周期成分增强特征,而VAE则表现出明显的持时延长现象。通过与4种经典地震动预测方程的对比研究发现,DDPM模拟结果与GMPEs预测值具有较好的一致性,但存在轻微的系统性低估趋势。
基于简单线性关系的分析方法在表征地震动影响因素时,往往导致预测结果与实测数据存在显著偏差。为克服这一局限性,本文基于生成式神经网络无需依赖先验地震学知识即可自动提取特征并生成完整地震动时程的优势,系统评估了3种典型生成式神经网络模型(变分自编码器VAE、生成对抗网络GAN和去噪扩散概率模型DDPM)在地震动模拟中的性能表现。研究采用PEER数据库中的1 451条水平向地震动记录(源自23次独立地震事件)作为训练数据集,对3种模型进行统一训练和对比分析。模拟结果时域和频域的综合评估结果表明,3种模型中DDPM展现出最优的模拟性能,GAN次之,而VAE表现相对欠佳。值得注意的是,GAN模拟结果呈现出显著的长周期成分增强特征,而VAE则表现出明显的持时延长现象。通过与4种经典地震动预测方程的对比研究发现,DDPM模拟结果与GMPEs预测值具有较好的一致性,但存在轻微的系统性低估趋势。
2025,
20(4):
739-753. doi: 10.11899/zzfy20250120
摘要:
为解决竖向地震动预测不确定性较大的问题,利用NGA-West强地震动数据库,基于自适应神经模糊推理方法(ANFIS)建立竖向地震动强度预测模型,计算2022年1月8日青海门源MW6.7地震的竖向地震动峰值加速度分布。在利用国家地震烈度速报与预警工程观测数据开展信度检验的基础上,探讨近场强地震动的方向效应、场地放大效应及其成因机理。研究结果表明:(1)基于ANFIS方法的竖向地震动强度预测模型在门源MW6.7地震竖向PGA预测过程中取得了较好的预测结果,其预测值与观测值相关系数R约为0.809,均方根误差ERMS约为0.046,说明本文预测模型具有较好的可靠性,同时检验了其在我国中强破坏性地震预测中的适用性。(2)门源MW6.7地震的竖向PGA预测值等值线整体上呈椭圆状,其长轴与发震断层走向具有较好的一致性,震中附近竖向PGA极大值约为376.3 Gal。竖向PGA在随断层距增大而不断衰减的同时,呈现出较为显著的方向性效应以及一定程度上的近场大震饱和效应。(3)竖向地震动峰值加速度的场地放大效应相对弱于水平向地震动,随着\begin{document}$ {{V}}_{{{\mathrm{S}}30}} $\end{document} ![]()
![]()
的不断降低,竖向PGA相对于基岩场地的PGA最大放大倍数约为1.14~1.27;大震条件(MW=7.0)下软土场地(\begin{document}$ {{V}}_{{{\mathrm{S}}30}} $\end{document} ![]()
![]()
=100 m/s)处放大系数约为0.79,呈现出一定的软土减震效应。
为解决竖向地震动预测不确定性较大的问题,利用NGA-West强地震动数据库,基于自适应神经模糊推理方法(ANFIS)建立竖向地震动强度预测模型,计算2022年1月8日青海门源MW6.7地震的竖向地震动峰值加速度分布。在利用国家地震烈度速报与预警工程观测数据开展信度检验的基础上,探讨近场强地震动的方向效应、场地放大效应及其成因机理。研究结果表明:(1)基于ANFIS方法的竖向地震动强度预测模型在门源MW6.7地震竖向PGA预测过程中取得了较好的预测结果,其预测值与观测值相关系数R约为0.809,均方根误差ERMS约为0.046,说明本文预测模型具有较好的可靠性,同时检验了其在我国中强破坏性地震预测中的适用性。(2)门源MW6.7地震的竖向PGA预测值等值线整体上呈椭圆状,其长轴与发震断层走向具有较好的一致性,震中附近竖向PGA极大值约为376.3 Gal。竖向PGA在随断层距增大而不断衰减的同时,呈现出较为显著的方向性效应以及一定程度上的近场大震饱和效应。(3)竖向地震动峰值加速度的场地放大效应相对弱于水平向地震动,随着
2025,
20(4):
754-766. doi: 10.11899/zzfy20250125
摘要:
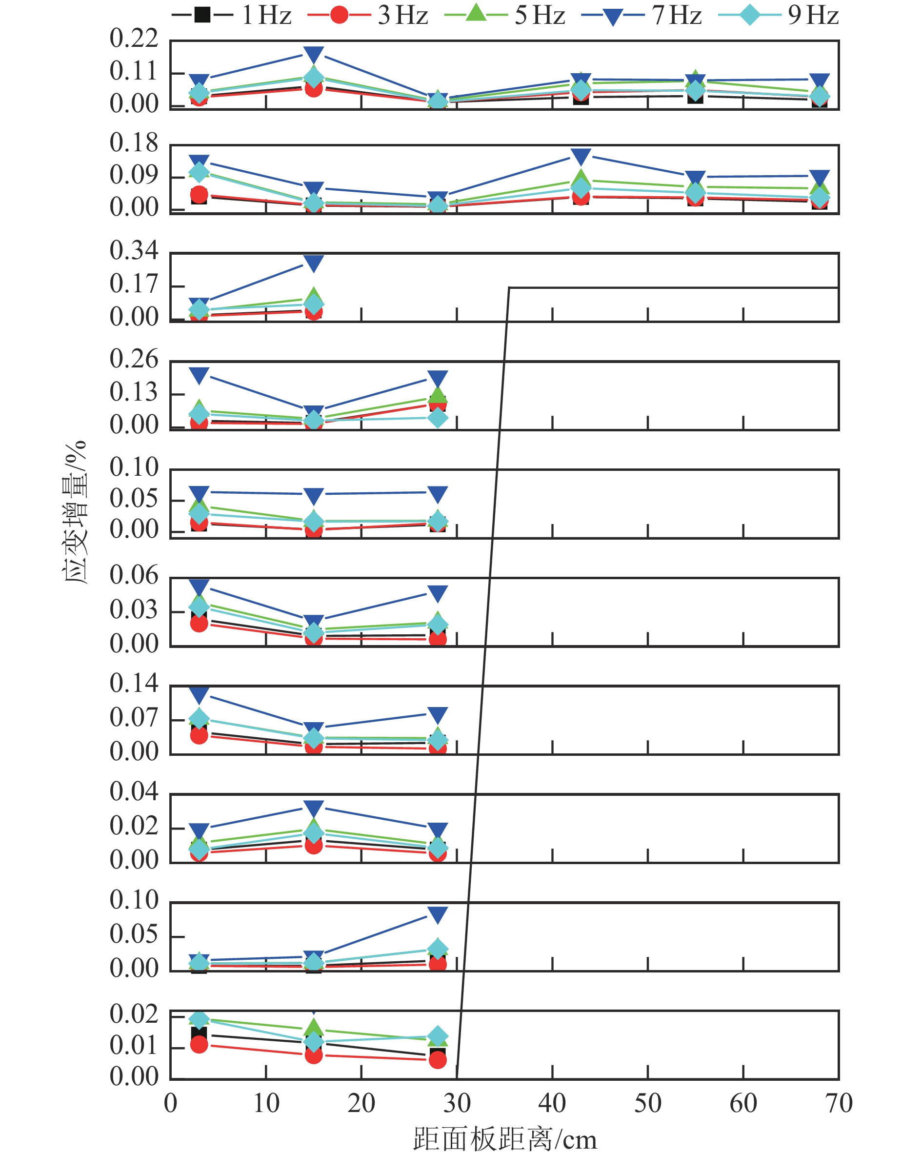
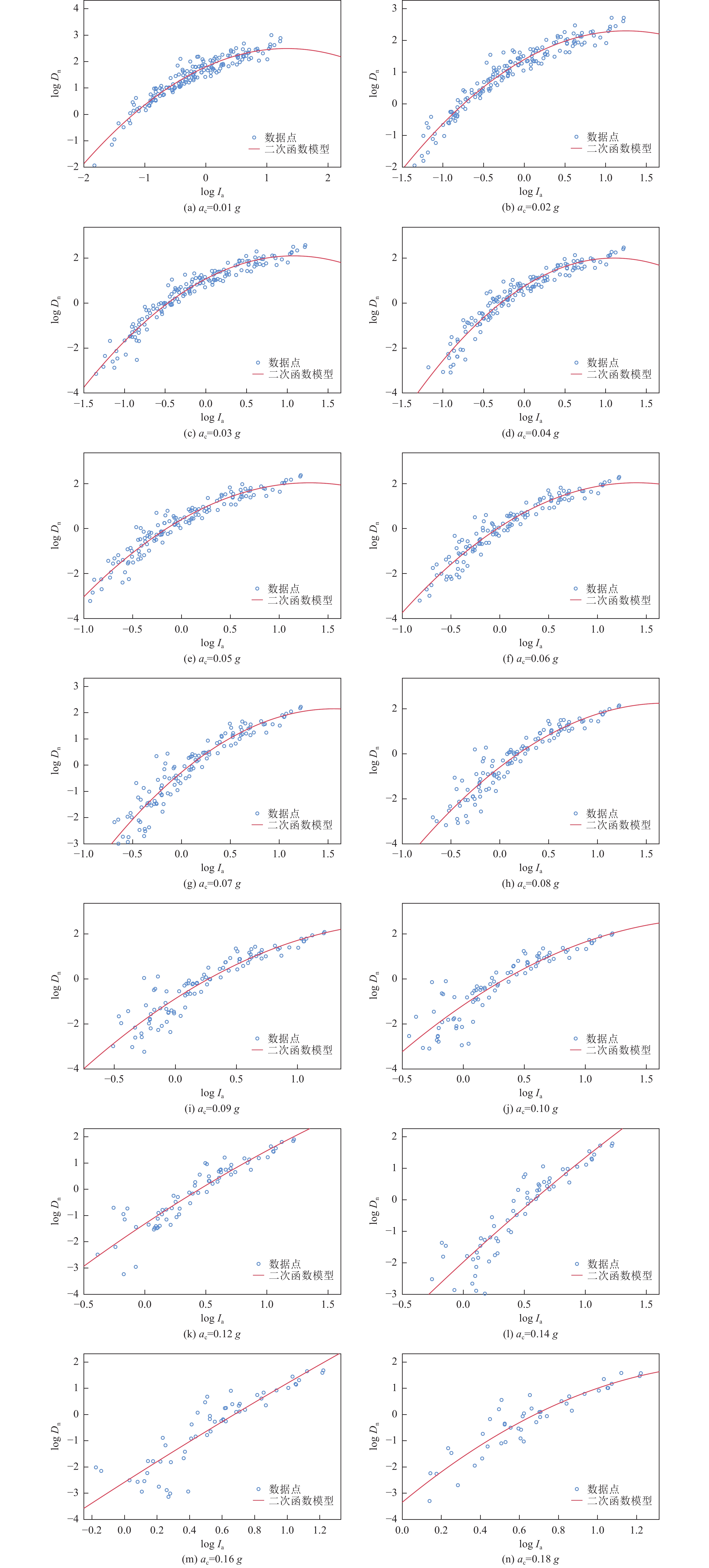
长周期地震动因具有丰富的低频成分而易使超高层建筑、大跨桥梁、大型生命线工程等长周期结构产生震害,根据形成机制与特征不同,可分为近场长周期地震动和远场长周期地震动两大类。目前对于长周期地震动的界定方法尚未有统一标准,现有方法多根据单一参数判定,无法表征长周期地震动的复杂特性,且缺少对不同类型长周期地震动的界定。鉴于此,本文从人工多角度提取特征和自动拾取时空联合特征2个角度,分别基于机器学习和深度学习搭建PCA-SVM模型和CNN-LSTM-Attention模型,实现了对近、远场长周期地震动的高效判别,在测试集上分别达到了96.57%和97.06%的准确率。结果表明,本文提出的2种分类模型对近、远场长周期地震动均有较好的判别效果,且相较于传统方法更具优越性,可为长周期地震动的识别与选取提供参考。
长周期地震动因具有丰富的低频成分而易使超高层建筑、大跨桥梁、大型生命线工程等长周期结构产生震害,根据形成机制与特征不同,可分为近场长周期地震动和远场长周期地震动两大类。目前对于长周期地震动的界定方法尚未有统一标准,现有方法多根据单一参数判定,无法表征长周期地震动的复杂特性,且缺少对不同类型长周期地震动的界定。鉴于此,本文从人工多角度提取特征和自动拾取时空联合特征2个角度,分别基于机器学习和深度学习搭建PCA-SVM模型和CNN-LSTM-Attention模型,实现了对近、远场长周期地震动的高效判别,在测试集上分别达到了96.57%和97.06%的准确率。结果表明,本文提出的2种分类模型对近、远场长周期地震动均有较好的判别效果,且相较于传统方法更具优越性,可为长周期地震动的识别与选取提供参考。
2025,
20(4):
767-779. doi: 10.11899/zzfy20250108
摘要:
局部区域强震台站的稀疏分布严重制约了数据驱动类局部场地放大效应预测模型的构建。本研究利用少量台站多次地震事件的观测数据,提出了一种有效的局部场地效应预测模型构建方法。基于场地效应评价的标准谱比法(Surface/Basement Spectral Ratio,SBSR)和广义反演法(Generalized Inversion Technique,GIT),分别结合卷积神经网络(Convolutional Neural Networks,CNN)和长短时记忆网络(Long Short-term Memory Networks,LSTM),构建了4类确定局部场地放大效应的智能预测模型(CNN-SBSR、CNN-GIT、LSTM-SBSR和LSTM-GIT)。其中SBSR类模型选取了震源参数(震级、震中距、震源深度)、场地参数(等效剪切波速、基岩加速度峰值)及空间坐标(经纬度)等为输入参数,而GIT类模型则仅依赖场地特性和空间信息等相关参数。与传统场地预测方法相比,本研究提出的模型能够直接从单次地震事件的观测数据中进行特征学习,突破了传统方法依赖台站平均谱比回归的局限。所构建的模型仅需输入目标场地的相关信息(如场地特征和空间信息参数等),即可快速预测局部区域中指定位置处的谱比,从而有效解决了传统方法中难以外推至无台站区域或预测精度较差的限制。基于所提出的方法,利用新西兰下哈特盆地6个台站数据构建交叉验证预测模型,结果表明:LSTM类模型凭借其优异的时序特征提取能力展现出更高的预测精度,而CNN模型在参数较少时表现出更好的稳健性。GIT方法因强化场地参数作用,整体性能优于SBSR方法。本研究为稀疏台站区域的场地放大效应预测提供了一种有效的解决方法。
局部区域强震台站的稀疏分布严重制约了数据驱动类局部场地放大效应预测模型的构建。本研究利用少量台站多次地震事件的观测数据,提出了一种有效的局部场地效应预测模型构建方法。基于场地效应评价的标准谱比法(Surface/Basement Spectral Ratio,SBSR)和广义反演法(Generalized Inversion Technique,GIT),分别结合卷积神经网络(Convolutional Neural Networks,CNN)和长短时记忆网络(Long Short-term Memory Networks,LSTM),构建了4类确定局部场地放大效应的智能预测模型(CNN-SBSR、CNN-GIT、LSTM-SBSR和LSTM-GIT)。其中SBSR类模型选取了震源参数(震级、震中距、震源深度)、场地参数(等效剪切波速、基岩加速度峰值)及空间坐标(经纬度)等为输入参数,而GIT类模型则仅依赖场地特性和空间信息等相关参数。与传统场地预测方法相比,本研究提出的模型能够直接从单次地震事件的观测数据中进行特征学习,突破了传统方法依赖台站平均谱比回归的局限。所构建的模型仅需输入目标场地的相关信息(如场地特征和空间信息参数等),即可快速预测局部区域中指定位置处的谱比,从而有效解决了传统方法中难以外推至无台站区域或预测精度较差的限制。基于所提出的方法,利用新西兰下哈特盆地6个台站数据构建交叉验证预测模型,结果表明:LSTM类模型凭借其优异的时序特征提取能力展现出更高的预测精度,而CNN模型在参数较少时表现出更好的稳健性。GIT方法因强化场地参数作用,整体性能优于SBSR方法。本研究为稀疏台站区域的场地放大效应预测提供了一种有效的解决方法。
2025,
20(4):
780-792. doi: 10.11899/zzfy20250106
摘要:
工程结构加固是指为满足新的功能需求、安全标准或抗震设防要求,对既有结构进行的加固补强。加固方案的选择往往依托技术人员的专业技术水平和工程经验,具有一定的主观性。本研究采用机器学习中的随机森林算法作为数据分析工具,选取结构信息和结构问题两方面共14个影响因素作为输入特征,结构整体加固与局部加固方案作为输出特征。通过构建结构加固策略智能分析模型,有效应对加固方案复杂、组合情况多样而难以建模的问题。本研究以122个实际工程案例为样本构建数据集,通过5个独立随机森林模型(整体结构、墙、柱、梁、板)的构建与整合实现了结构整体加固和局部加固方案的预测,分析了全部特征、重要特征和简单特征3种不同输入特征组合的随机森林模型预测结果,以探究不同输入特征对模型准确率的影响。结果表明,基于全部特征和基于重要特征的机器学习模型准确率相近,5个模型的准确率均可达到69%以上,其中部分模型可以达到80%左右;而基于简单特征的随机森林模型准确率较低。由此可见,选取的重要特征与随机森林模型的预测准确率相关性高,而简单特征难以构建可靠的预测模型。研究成果可为结构加固领域的智能化决策和分析提供参考。
工程结构加固是指为满足新的功能需求、安全标准或抗震设防要求,对既有结构进行的加固补强。加固方案的选择往往依托技术人员的专业技术水平和工程经验,具有一定的主观性。本研究采用机器学习中的随机森林算法作为数据分析工具,选取结构信息和结构问题两方面共14个影响因素作为输入特征,结构整体加固与局部加固方案作为输出特征。通过构建结构加固策略智能分析模型,有效应对加固方案复杂、组合情况多样而难以建模的问题。本研究以122个实际工程案例为样本构建数据集,通过5个独立随机森林模型(整体结构、墙、柱、梁、板)的构建与整合实现了结构整体加固和局部加固方案的预测,分析了全部特征、重要特征和简单特征3种不同输入特征组合的随机森林模型预测结果,以探究不同输入特征对模型准确率的影响。结果表明,基于全部特征和基于重要特征的机器学习模型准确率相近,5个模型的准确率均可达到69%以上,其中部分模型可以达到80%左右;而基于简单特征的随机森林模型准确率较低。由此可见,选取的重要特征与随机森林模型的预测准确率相关性高,而简单特征难以构建可靠的预测模型。研究成果可为结构加固领域的智能化决策和分析提供参考。
2025,
20(4):
793-801. doi: 10.11899/zzfy20250127
摘要:
本文将灰色系统理论与梯度下降算法结合,提出了一种基于GM(1,1)模型的动态自适应模型优化方法,用于桥梁震损预测。结合桥梁震损研究中地震动随机性强、结构破坏有界等特点,对GM(1,1)模型进行了多项优化,并引入梯度下降算法实现参数动态优化。通过建立四跨预应力混凝土组合箱梁桥的有限元模型,并采用实测地震动记录进行非线性动力时程分析,验证了模型优化方法的可行性与精确度。结果表明,优化后的模型仅需5~6个初始数据即可有效预测桥梁地震易损性,最大误差控制在7%以内,轻微破坏预测精度最高。本研究为地震频发地区提供了轻量化预测方案,基于少量数据即可开展多烈度易损性评估。
本文将灰色系统理论与梯度下降算法结合,提出了一种基于GM(1,1)模型的动态自适应模型优化方法,用于桥梁震损预测。结合桥梁震损研究中地震动随机性强、结构破坏有界等特点,对GM(1,1)模型进行了多项优化,并引入梯度下降算法实现参数动态优化。通过建立四跨预应力混凝土组合箱梁桥的有限元模型,并采用实测地震动记录进行非线性动力时程分析,验证了模型优化方法的可行性与精确度。结果表明,优化后的模型仅需5~6个初始数据即可有效预测桥梁地震易损性,最大误差控制在7%以内,轻微破坏预测精度最高。本研究为地震频发地区提供了轻量化预测方案,基于少量数据即可开展多烈度易损性评估。
2025,
20(4):
802-813. doi: 10.11899/zzfy20240509
摘要:
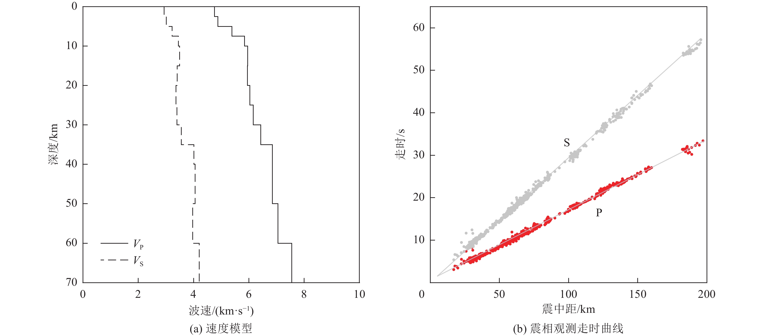
本文为研究2024年新疆乌什MS7.1地震的发震构造及应力场特征,收集了主震发生后1月23日至2月1日M≥3.5地震事件的P波初动极性符号,采用初至波极性约束的震源机制反演方法,得到68组震源破裂参数,基于应变花分类体系,建立震源机制类型与区域应力场的映射关系,发现尽管震源机制类型多样,但逆冲类事件占比超过半数,表明此次地震序列是以逆冲破裂为主。随后,系统整合本次地震与历史震源机制解,并通过网格搜索法和遗传算法进行应力张量反演,结果显示研究区呈近SN向挤压、NEE向近垂直拉张。进一步模拟应力体系与震源机制之间的关系表明此次地震沿最优节面破裂,并为后续发震机制与地球动力学研究提供了参考。
本文为研究2024年新疆乌什MS7.1地震的发震构造及应力场特征,收集了主震发生后1月23日至2月1日M≥3.5地震事件的P波初动极性符号,采用初至波极性约束的震源机制反演方法,得到68组震源破裂参数,基于应变花分类体系,建立震源机制类型与区域应力场的映射关系,发现尽管震源机制类型多样,但逆冲类事件占比超过半数,表明此次地震序列是以逆冲破裂为主。随后,系统整合本次地震与历史震源机制解,并通过网格搜索法和遗传算法进行应力张量反演,结果显示研究区呈近SN向挤压、NEE向近垂直拉张。进一步模拟应力体系与震源机制之间的关系表明此次地震沿最优节面破裂,并为后续发震机制与地球动力学研究提供了参考。
2025,
20(4):
814-827. doi: 10.11899/zzfy20240232
摘要:
本文基于云南省区域数字化地震监测台网地震观测报告和云南台网区域地震波形数据,结合双差定位方法、CAP方法、川滇地区高分辨率速度模型和流体扩散模型,深入分析了2023年云南保山MS5.2地震的发震断层和成因。双差重定位结果显示,云南保山MS5.2地震沿NW向呈条带状分布,震源深度主要集中在4~12 km。震源机制解反演结果表明,云南保山 MS5.2主震2个发震断层面参数为:节面Ⅰ,走向51°,倾角78°,滑动角−34°;节面Ⅱ,走向149°,倾角56.8°,滑动角−165.6°。根据流体扩散模型拟合得到水力扩散系数\begin{document}$ D $\end{document} ![]()
![]()
介于0.347~1.04 m2/s之间。根据2000—2023年地震目录,证实水库蓄水在库区周边诱发了地震活动,地震多以小群形式分布在与澜沧江河床延伸方向一致的断裂带和多组断裂交汇处。综合重定位结果、震源机制解结果及附近区域的地质构造背景,推测云南保山MS5.2地震的发震构造是一条NW149°走向的走滑型断裂,小湾电站建成蓄水后,诱发了库区周边地震活动,而云南保山MS5.2地震的发生可能是长期受库水渗透而处于饱水状态的地壳卸荷触发的一次构造型水库地震。
本文基于云南省区域数字化地震监测台网地震观测报告和云南台网区域地震波形数据,结合双差定位方法、CAP方法、川滇地区高分辨率速度模型和流体扩散模型,深入分析了2023年云南保山MS5.2地震的发震断层和成因。双差重定位结果显示,云南保山MS5.2地震沿NW向呈条带状分布,震源深度主要集中在4~12 km。震源机制解反演结果表明,云南保山 MS5.2主震2个发震断层面参数为:节面Ⅰ,走向51°,倾角78°,滑动角−34°;节面Ⅱ,走向149°,倾角56.8°,滑动角−165.6°。根据流体扩散模型拟合得到水力扩散系数
2025,
20(4):
828-839. doi: 10.11899/zzfy20240178
摘要:
地震地表变形会对基础设施造成巨大破坏,如何减轻其造成的破坏,成为设计人员关注的重点。本文在整理我国自1900年以来有同震地表破裂的地震案例基础上,将数据分为逆断层型、正断层型与走滑断层型3类,分别进行最小二乘法分析,得到不同断裂类型的震级与地震破裂参数及其位移量之间的关系,同时针对我国西部地区震级与地震破裂参数的回归关系式进行了讨论;并对搜集到的我国21例震后地表形变监测数据进行讨论。结果显示,同震阶段的拟合公式相关系数较大,标准偏差较小,所得经验关系更接近中国地质实际情况;震后2年内近场形变量大多位于5~7 cm、震后10 年内近场地表形变量大多位于8~10 cm;说明可以定量及半定量的分析同震、震后破裂参数,为地震易发区穿越潜在活动断层的基础设施设计以及安全性评价提供参考依据。
地震地表变形会对基础设施造成巨大破坏,如何减轻其造成的破坏,成为设计人员关注的重点。本文在整理我国自1900年以来有同震地表破裂的地震案例基础上,将数据分为逆断层型、正断层型与走滑断层型3类,分别进行最小二乘法分析,得到不同断裂类型的震级与地震破裂参数及其位移量之间的关系,同时针对我国西部地区震级与地震破裂参数的回归关系式进行了讨论;并对搜集到的我国21例震后地表形变监测数据进行讨论。结果显示,同震阶段的拟合公式相关系数较大,标准偏差较小,所得经验关系更接近中国地质实际情况;震后2年内近场形变量大多位于5~7 cm、震后10 年内近场地表形变量大多位于8~10 cm;说明可以定量及半定量的分析同震、震后破裂参数,为地震易发区穿越潜在活动断层的基础设施设计以及安全性评价提供参考依据。
2025,
20(4):
840-849. doi: 10.11899/zzfy20240184
摘要:
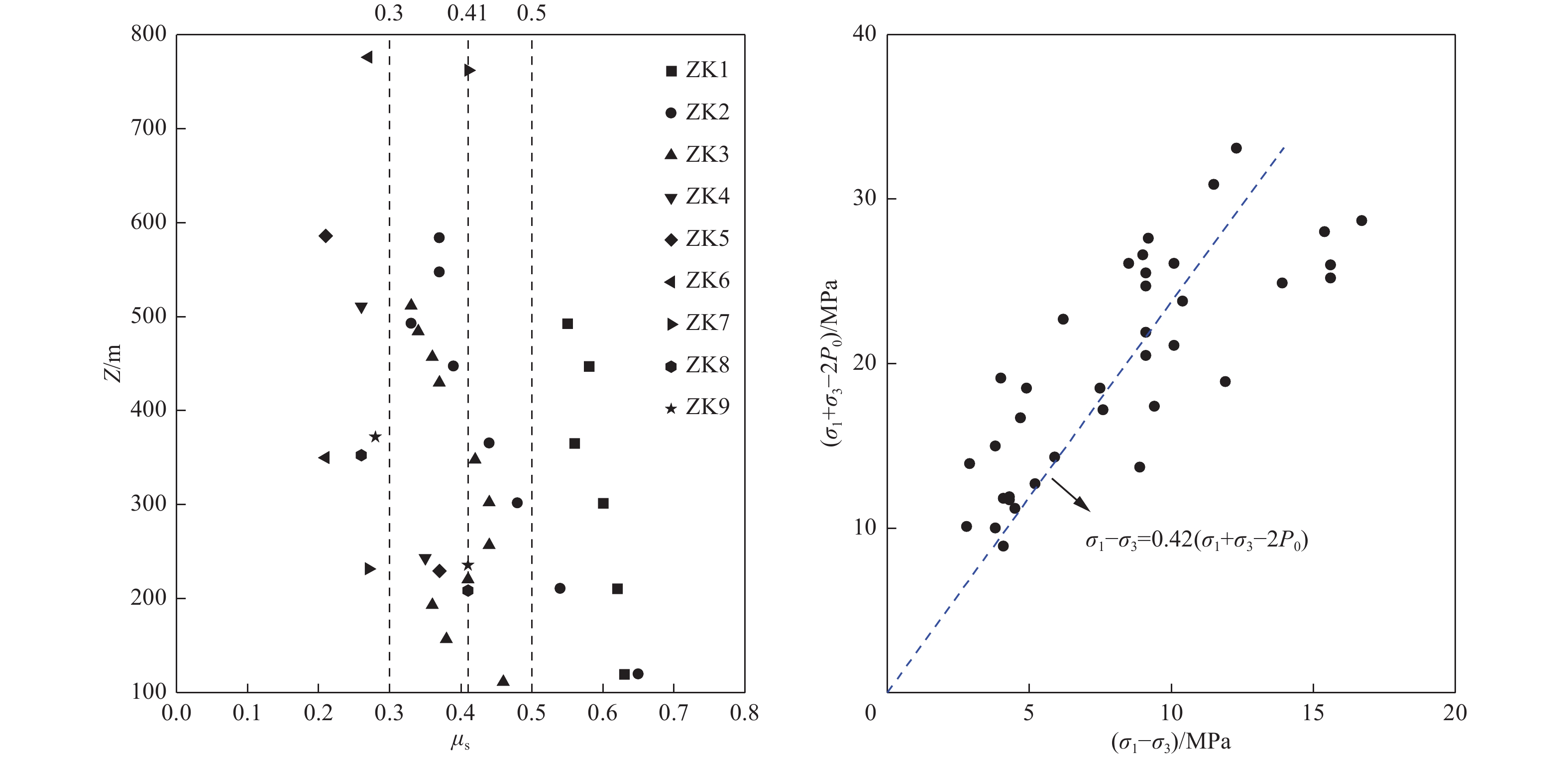
杭州湾衢山岛屿位于中国大陆华北、华南活动地块和华北、华南地应力分区的边界地带,该区域的地应力研究工作对于理解该区域地壳应力状态和地壳动力学行为意义重大。研究区小衢山岛大地构造位于华南地槽褶皱系的浙东南褶皱带东北部,距上海芦潮港30海里。基于小衢山岛上3个钻孔的水压致裂原地应力测试数据综合分析,研究区最大水平主应力方向范围为N56.9°W~ N76.9°W,说明该区域主要受太平洋板块和菲律宾海板块向北西西、北西向俯冲推挤力源的影响。最大、最小水平主应力量值基本随深度增加而增大,最大水平主应力量值一般为7.39~15.74 MPa,最小水平主应力量值一般为3.99~8.41 MPa,最大、最小侧压力系数范围分别为2.11≤kH≤7.56,1.23≤kh≤3.85。利用实测数据计算的剪应力积累因子μ的范围是0.36~0.77,平均值为0.55,剪应力积累程度较高。研究结果为认识中国大陆东部华北、华南活动地块的分界分区问题提供了新的地应力证据。
杭州湾衢山岛屿位于中国大陆华北、华南活动地块和华北、华南地应力分区的边界地带,该区域的地应力研究工作对于理解该区域地壳应力状态和地壳动力学行为意义重大。研究区小衢山岛大地构造位于华南地槽褶皱系的浙东南褶皱带东北部,距上海芦潮港30海里。基于小衢山岛上3个钻孔的水压致裂原地应力测试数据综合分析,研究区最大水平主应力方向范围为N56.9°W~ N76.9°W,说明该区域主要受太平洋板块和菲律宾海板块向北西西、北西向俯冲推挤力源的影响。最大、最小水平主应力量值基本随深度增加而增大,最大水平主应力量值一般为7.39~15.74 MPa,最小水平主应力量值一般为3.99~8.41 MPa,最大、最小侧压力系数范围分别为2.11≤kH≤7.56,1.23≤kh≤3.85。利用实测数据计算的剪应力积累因子μ的范围是0.36~0.77,平均值为0.55,剪应力积累程度较高。研究结果为认识中国大陆东部华北、华南活动地块的分界分区问题提供了新的地应力证据。
2025,
20(4):
850-861. doi: 10.11899/zzfy20240510
摘要:
以穿越逆断层的新藏公路高寒地区的某片块石路基段为研究对象,通过物理试验和数值模拟,分析了逆断层断错作用下片块石路基的变形与受力特征。物理试验模型按1∶15的比例缩尺建立,试验结果显示:上盘整体抬升,其破坏程度高于下盘,但下盘受断错影响的范围较大。距离断错迹线越近,路基破坏越严重,反之则越轻,最大变形出现在断层迹线处。从破坏形态来看,片块石路基破坏的形式主要有路面隆起、裂缝、水稳层与片块石层脱空、张拉断裂等。数值模拟结果显示:上盘整体抬升,最大变形同样出现在断层迹线处,且断层迹线附近变形急剧变化,距离迹线越远,相对变形逐渐减小。上盘水稳层在远离迹线处受压,靠近迹线处受拉;下盘水稳层在靠近迹线处受拉,远离迹线处受压,下盘端部受压达到最大值;片块石层与砂砾层土的压力基本表现为受压,且压力在迹线处减小。数值模拟中的片块石路基变形和受力特征与试验结果较为吻合,研究结果表明,片块石路基具有较好的抗断效果,这些结论可为跨活动断层片块石路基设计提供科学依据。
以穿越逆断层的新藏公路高寒地区的某片块石路基段为研究对象,通过物理试验和数值模拟,分析了逆断层断错作用下片块石路基的变形与受力特征。物理试验模型按1∶15的比例缩尺建立,试验结果显示:上盘整体抬升,其破坏程度高于下盘,但下盘受断错影响的范围较大。距离断错迹线越近,路基破坏越严重,反之则越轻,最大变形出现在断层迹线处。从破坏形态来看,片块石路基破坏的形式主要有路面隆起、裂缝、水稳层与片块石层脱空、张拉断裂等。数值模拟结果显示:上盘整体抬升,最大变形同样出现在断层迹线处,且断层迹线附近变形急剧变化,距离迹线越远,相对变形逐渐减小。上盘水稳层在远离迹线处受压,靠近迹线处受拉;下盘水稳层在靠近迹线处受拉,远离迹线处受压,下盘端部受压达到最大值;片块石层与砂砾层土的压力基本表现为受压,且压力在迹线处减小。数值模拟中的片块石路基变形和受力特征与试验结果较为吻合,研究结果表明,片块石路基具有较好的抗断效果,这些结论可为跨活动断层片块石路基设计提供科学依据。
2025,
20(4):
862-869. doi: 10.11899/zzfy20240230
摘要:
基于饱和两相介质波动的土力学模型,借助均匀孔隙流体的概念,推导了准饱和土中弹性波波速和衰减系数的理论解析表达式。通过数值计算,系统分析了含气量对4类不同典型准饱和土中压缩波传播特性的影响,全面讨论了不同含气量的准饱和土中压缩波的频散和衰减特性,并与气饱和土、水饱和土的计算结果进行比较。结果表明,不同准饱和土中压缩波速度和衰减随含气量变化的形状相同,但幅值不同;随着含气量增加,P1波波速减小,在气饱和土中达到最小,且频散现象愈加不明显,原因在于气-固耦合作用显著低于水-固耦合作用;但高频时,P2波速在气饱和土中取到最大值。总之,含气量对压缩波传播特性的影响非常显著,且结论对认识地震波传播特性及工程结构抗震设防有重要的理论和实践意义。
基于饱和两相介质波动的土力学模型,借助均匀孔隙流体的概念,推导了准饱和土中弹性波波速和衰减系数的理论解析表达式。通过数值计算,系统分析了含气量对4类不同典型准饱和土中压缩波传播特性的影响,全面讨论了不同含气量的准饱和土中压缩波的频散和衰减特性,并与气饱和土、水饱和土的计算结果进行比较。结果表明,不同准饱和土中压缩波速度和衰减随含气量变化的形状相同,但幅值不同;随着含气量增加,P1波波速减小,在气饱和土中达到最小,且频散现象愈加不明显,原因在于气-固耦合作用显著低于水-固耦合作用;但高频时,P2波速在气饱和土中取到最大值。总之,含气量对压缩波传播特性的影响非常显著,且结论对认识地震波传播特性及工程结构抗震设防有重要的理论和实践意义。
2025,
20(4):
870-886. doi: 10.11899/zzfy20240241
摘要:
四川省地质构造环境复杂,地震频发,诱发了大量地震滑坡灾害,对区域建设和人民生命财产安全造成巨大影响。本文使用基于减法聚类的自适应神经网络模糊推理系统(SCM-ANFIS),评价了四川省内不同地震动作用水平下的地震滑坡危险性并生成分区图。首先,以汶川、芦山、九寨沟、泸定4次地震滑坡事件为代表生成了地震滑坡编目。在此基础上,基于可靠优化策略构建了样本采集区,并以概率采样的思想生成了符合“真实概率”的滑坡和非滑坡样本。选择海拔、坡度、坡向、平面曲率、剖面曲率、到河流的距离、到断层线的距离、降水量、土壤类型、地层岩性、峰值加速度和到历史震中的距离12个滑坡影响因子构建了SCM-ANFIS评价模型。其次,采用概率地震危险性分析方法,计算了四川地区在设防地震水平(50年超越概率10%)和罕遇地震水平(50年超越概率2%)下的地震动峰值加速度(PGA)分布,并结合评价模型给出了多概率地震动作用下的地震滑坡危险性评价结果,生成了有关人类活动的简化风险分区图。然后,根据生成的分区图对四川省内的地震滑坡危险性进一步分析评判,并分析了地震滑坡危害对人类自然活动的影响。最后,文章讨论了不同采样策略下危险性模型的性能表现和实际制图效果,进一步分析了4次地震滑坡事件对人类活动造成的影响,并讨论了研究的应用场景和局限性。
四川省地质构造环境复杂,地震频发,诱发了大量地震滑坡灾害,对区域建设和人民生命财产安全造成巨大影响。本文使用基于减法聚类的自适应神经网络模糊推理系统(SCM-ANFIS),评价了四川省内不同地震动作用水平下的地震滑坡危险性并生成分区图。首先,以汶川、芦山、九寨沟、泸定4次地震滑坡事件为代表生成了地震滑坡编目。在此基础上,基于可靠优化策略构建了样本采集区,并以概率采样的思想生成了符合“真实概率”的滑坡和非滑坡样本。选择海拔、坡度、坡向、平面曲率、剖面曲率、到河流的距离、到断层线的距离、降水量、土壤类型、地层岩性、峰值加速度和到历史震中的距离12个滑坡影响因子构建了SCM-ANFIS评价模型。其次,采用概率地震危险性分析方法,计算了四川地区在设防地震水平(50年超越概率10%)和罕遇地震水平(50年超越概率2%)下的地震动峰值加速度(PGA)分布,并结合评价模型给出了多概率地震动作用下的地震滑坡危险性评价结果,生成了有关人类活动的简化风险分区图。然后,根据生成的分区图对四川省内的地震滑坡危险性进一步分析评判,并分析了地震滑坡危害对人类自然活动的影响。最后,文章讨论了不同采样策略下危险性模型的性能表现和实际制图效果,进一步分析了4次地震滑坡事件对人类活动造成的影响,并讨论了研究的应用场景和局限性。
2025,
20(4):
887-896. doi: 10.11899/zzfy20240223
摘要:
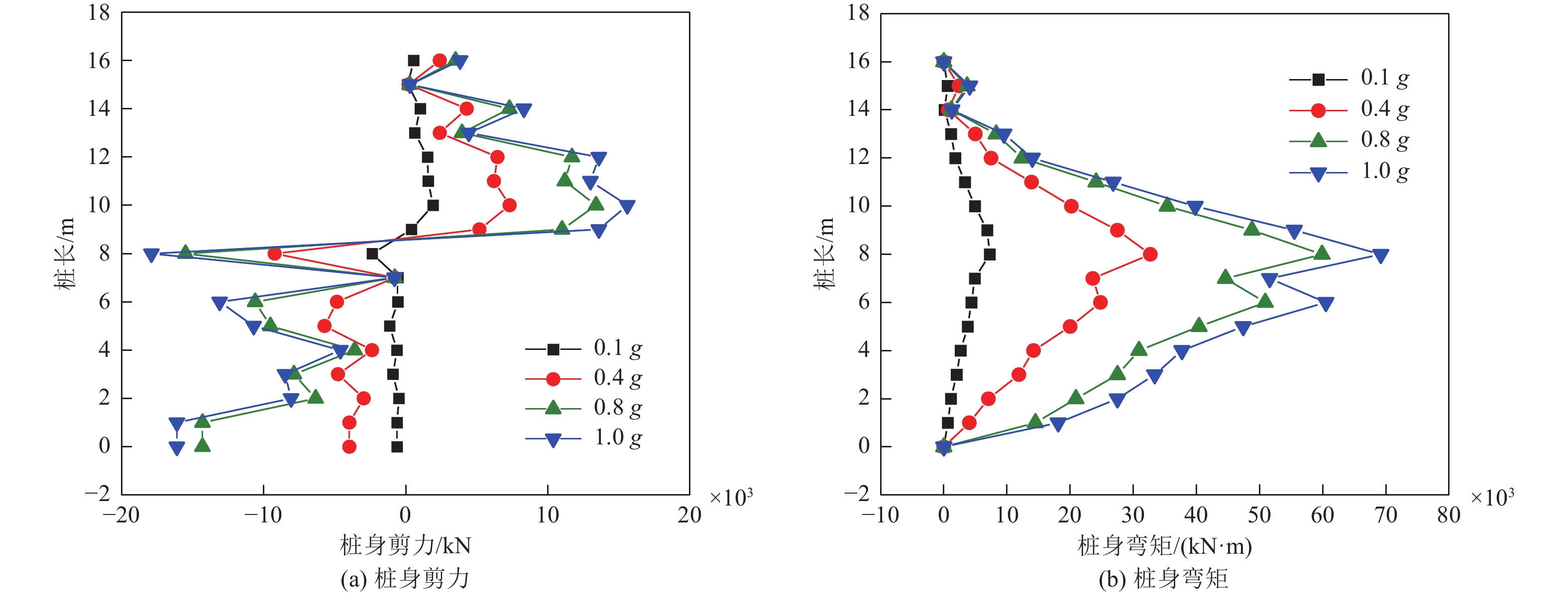
为研究缓倾斜坡场地中桩基框架结构间结构-土-结构动力相互作用特性,使用ABAQUS软件建立系列结构-土-结构二维有限元分析模型,考虑土-结构非线性特性,在0°~15°设置6种坡度条件,对缓倾斜坡场地中的建筑开展非线性有限元数值分析。结果表明:(1)相较于相邻建筑物,斜坡坡角对结构间峰值加速度的影响更大;(2)斜坡在放大坡上结构地震动响应的同时缩小了坡下结构的地震动响应;(3)相邻建筑物对基础各单桩顶的峰值剪力响应有较大影响,而对桩顶总剪力的影响不大,在水平或缓倾斜坡场地中SSSI效应均导致了结构桩顶剪力重分布现象。本研究可为实际工程中普遍存在的斜坡场地下结构的抗震设计提供理论参考。
为研究缓倾斜坡场地中桩基框架结构间结构-土-结构动力相互作用特性,使用ABAQUS软件建立系列结构-土-结构二维有限元分析模型,考虑土-结构非线性特性,在0°~15°设置6种坡度条件,对缓倾斜坡场地中的建筑开展非线性有限元数值分析。结果表明:(1)相较于相邻建筑物,斜坡坡角对结构间峰值加速度的影响更大;(2)斜坡在放大坡上结构地震动响应的同时缩小了坡下结构的地震动响应;(3)相邻建筑物对基础各单桩顶的峰值剪力响应有较大影响,而对桩顶总剪力的影响不大,在水平或缓倾斜坡场地中SSSI效应均导致了结构桩顶剪力重分布现象。本研究可为实际工程中普遍存在的斜坡场地下结构的抗震设计提供理论参考。
2025,
20(4):
897-908. doi: 10.11899/zzfy20240245
摘要:
土层可以显著改变地震动的幅值和频谱成分,从而改变桥梁的地震响应,忽略桩土相互作用(PSI)的影响将导致桥梁抗震性能评估失真。为更准确描述高墩桥梁在桩土作用效应下的抗震性能,基于OpenSees有限元软件将PSI考虑为非线性p-y约束与土层滤波效应的组合,建立高墩桥梁桩-土体系三维模型,以地震峰值加速度PGA为地震动强度指标,以桥墩截面曲率和支座位移为损伤指标,引入Nataf变换考虑桥梁各构件的地震响应参数相关性,并构建多维极限状态方程,选取18条地震动记录对上述桥梁体系进行水平双向增量动力非线性分析,建立高墩桥梁的地震易损性曲线并对抗震性能进行评估。研究结果表明:采用非线性p-y约束能够有效模拟桩土作用效应;在强震条件下,对桥梁损伤程度越高的状态,其评估更加精确;土层滤波后对地震波放大作用明显,从而使得桥梁结构地震响应在各损伤阶段的超越概率大幅上升;高墩横桥向损伤概率略高于纵桥向损伤概率,应优先考虑横向设计。在高墩桥梁的抗震设计阶段不能忽略土层滤波的影响,否则会提高桥梁抗震需求。
土层可以显著改变地震动的幅值和频谱成分,从而改变桥梁的地震响应,忽略桩土相互作用(PSI)的影响将导致桥梁抗震性能评估失真。为更准确描述高墩桥梁在桩土作用效应下的抗震性能,基于OpenSees有限元软件将PSI考虑为非线性p-y约束与土层滤波效应的组合,建立高墩桥梁桩-土体系三维模型,以地震峰值加速度PGA为地震动强度指标,以桥墩截面曲率和支座位移为损伤指标,引入Nataf变换考虑桥梁各构件的地震响应参数相关性,并构建多维极限状态方程,选取18条地震动记录对上述桥梁体系进行水平双向增量动力非线性分析,建立高墩桥梁的地震易损性曲线并对抗震性能进行评估。研究结果表明:采用非线性p-y约束能够有效模拟桩土作用效应;在强震条件下,对桥梁损伤程度越高的状态,其评估更加精确;土层滤波后对地震波放大作用明显,从而使得桥梁结构地震响应在各损伤阶段的超越概率大幅上升;高墩横桥向损伤概率略高于纵桥向损伤概率,应优先考虑横向设计。在高墩桥梁的抗震设计阶段不能忽略土层滤波的影响,否则会提高桥梁抗震需求。
2025,
20(4):
909-919. doi: 10.11899/zzfy20240238
摘要:
随着工程建设技术的发展及需求的提高,大跨度多连拱隧道逐渐增多,其抗震性能值得关注。本文以某多连拱隧道为依托,建立二维计算模型,采用等价线性化模型Davidenkov模型考虑土体非线性特性,探讨该类结构地震响应规律。首先将拱形隧道地震响应与等截面矩形隧道的地震响应相比较,分析截面形式对结构地震响应的影响。其次,探讨跨数、奇偶性对浅埋多连拱地下结构地震响应的影响。结果表明:(1)矩形较拱形结构产生更大残余变形;(2)结构的响应随跨数增加而增加,且增加的幅度高达30%;(3)奇、偶数拱结构的动力响应差异不明显。研究成果可为多连拱、大跨度浅埋隧道的抗震设计提供参考。
随着工程建设技术的发展及需求的提高,大跨度多连拱隧道逐渐增多,其抗震性能值得关注。本文以某多连拱隧道为依托,建立二维计算模型,采用等价线性化模型Davidenkov模型考虑土体非线性特性,探讨该类结构地震响应规律。首先将拱形隧道地震响应与等截面矩形隧道的地震响应相比较,分析截面形式对结构地震响应的影响。其次,探讨跨数、奇偶性对浅埋多连拱地下结构地震响应的影响。结果表明:(1)矩形较拱形结构产生更大残余变形;(2)结构的响应随跨数增加而增加,且增加的幅度高达30%;(3)奇、偶数拱结构的动力响应差异不明显。研究成果可为多连拱、大跨度浅埋隧道的抗震设计提供参考。
2025,
20(4):
920-932. doi: 10.11899/zzfy20240231
摘要:
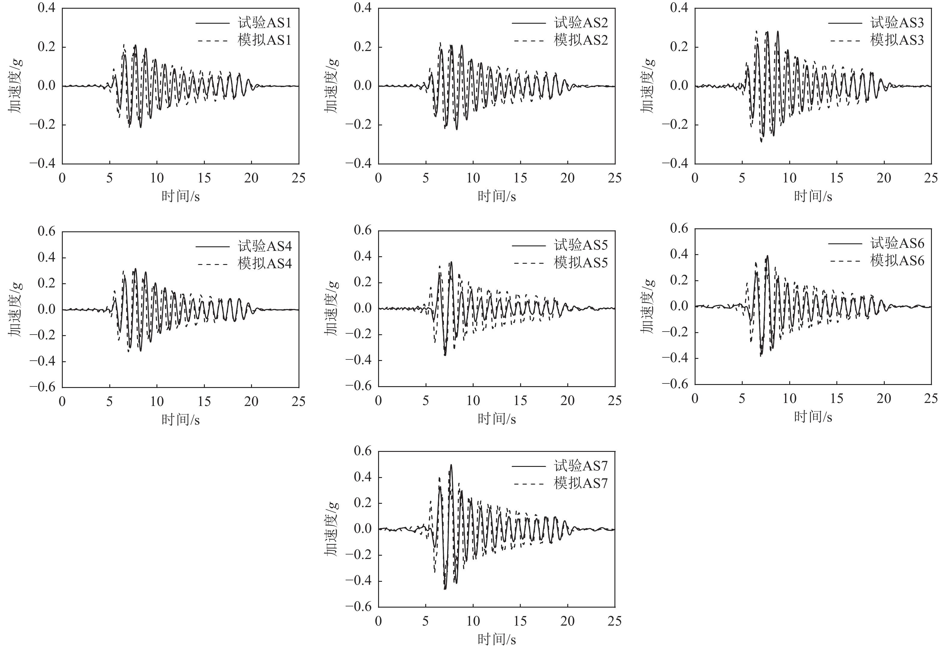
交通振动对古建筑的结构健康和长期稳定性构成了潜在威胁,尤其在现代城市环境中,交通荷载频繁且多样化,因此引入了一种结合时域分析的频率切片小波变换(Frequency Slice Wavelet Transform, FSWT)分析法,系统的研究交通振动对古建筑的影响。首先,对清远楼进行了现场振动测试,采用时域分析对交通振动信号进行初步处理,获取振动响应的基本特性;通过FSWT分析法对信号进行详细的时频分析,揭示振动信号的频率特性及其随时间变化的规律,分解出各个频率成分在不同时间段的能量分布;最后,建立有限元模型,进一步验证其方法的可靠性。研究结果显示:以时频能量为参考值更能反映出振动信号的实际变化规律及结构最易受影响的位置,即交通振动在古建筑中的传播具有明显的层次特征,0~10 Hz频段的振动能量随着高度增加而逐渐增大,在10~20 Hz频段,振动能量主要集中在台基结构,且随着频率的升高,能量逐渐集中于台基底部。此外,分析结果还揭示了木结构与台基在动态响应中的差异,为交通振动对古建筑的影响分析及易损部位的识别提供了科学依据。
交通振动对古建筑的结构健康和长期稳定性构成了潜在威胁,尤其在现代城市环境中,交通荷载频繁且多样化,因此引入了一种结合时域分析的频率切片小波变换(Frequency Slice Wavelet Transform, FSWT)分析法,系统的研究交通振动对古建筑的影响。首先,对清远楼进行了现场振动测试,采用时域分析对交通振动信号进行初步处理,获取振动响应的基本特性;通过FSWT分析法对信号进行详细的时频分析,揭示振动信号的频率特性及其随时间变化的规律,分解出各个频率成分在不同时间段的能量分布;最后,建立有限元模型,进一步验证其方法的可靠性。研究结果显示:以时频能量为参考值更能反映出振动信号的实际变化规律及结构最易受影响的位置,即交通振动在古建筑中的传播具有明显的层次特征,0~10 Hz频段的振动能量随着高度增加而逐渐增大,在10~20 Hz频段,振动能量主要集中在台基结构,且随着频率的升高,能量逐渐集中于台基底部。此外,分析结果还揭示了木结构与台基在动态响应中的差异,为交通振动对古建筑的影响分析及易损部位的识别提供了科学依据。
2025,
20(4):
933-942. doi: 10.11899/zzfy20250006
摘要:
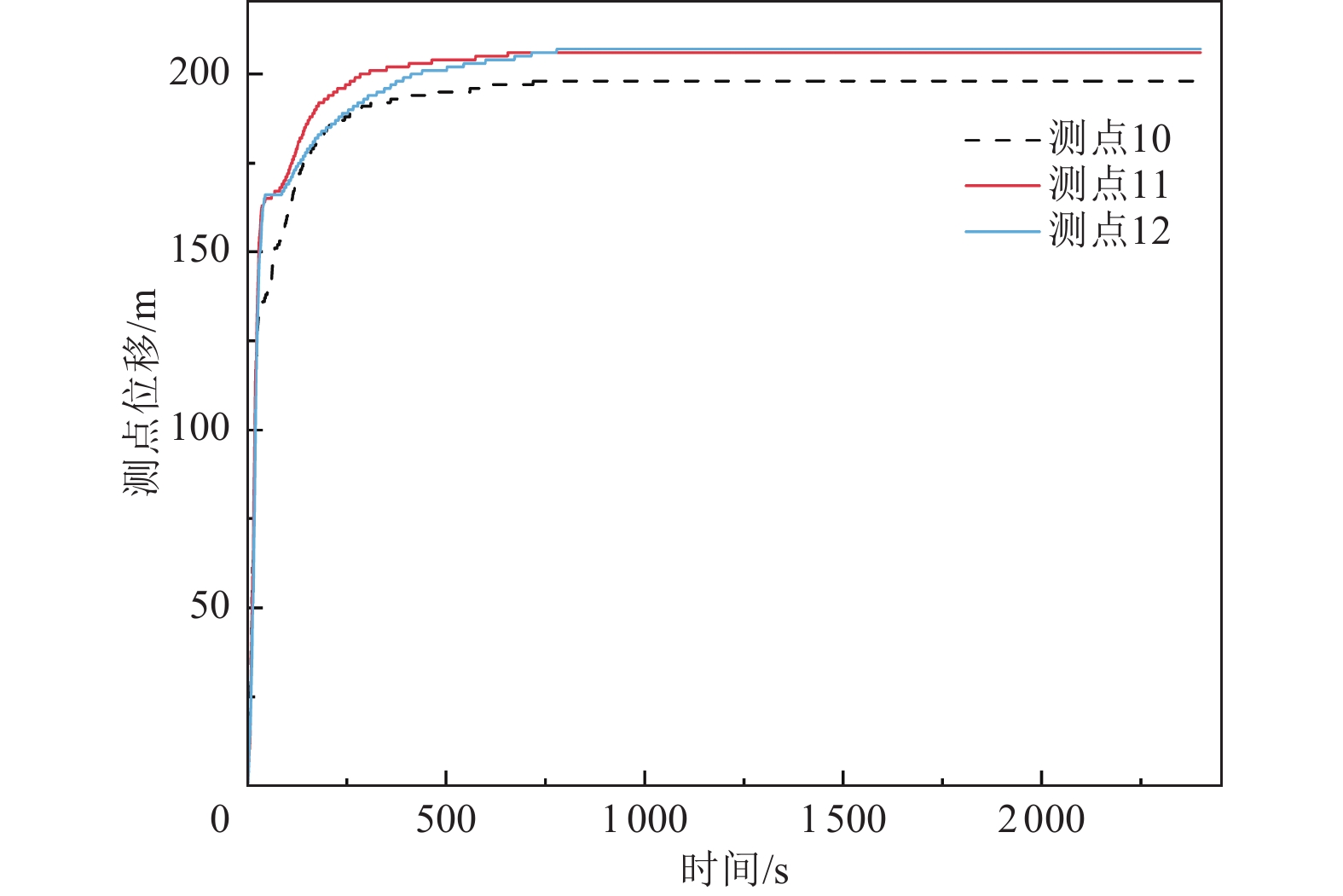
我国先进燃料组件的自主研发将有助于提升核电厂的经济性和安全性。在新型燃料组件入堆形成混合堆芯时,需要开展燃料组件相容性、中子学特性及抗震性能等方面的安全评价。针对新型燃料组件入堆换料方案中出现的混合堆芯条件,结合自主化新型燃料组件设计改进特点,开展堆芯燃料组件抗震分析,研究不同设计改进和不同装载方案对燃料组件抗震性能的影响。结果表明:均质堆芯条件下,随着单排组件数量的增多,组件格架的最大碰撞力和最大位移逐渐增大,选择单排15个组件开展抗震分析具有一定的保守性。混合堆芯条件下,格架刚度参数变化对入堆第1和第2循环格架最大位移影响较大,导向管壁厚增加和格架刚度减小等参数改进会引起第1循环边缘对称AA组件装载方案格架最大碰撞力的大幅增长,可能超过单排15个组件成为整个堆芯组件格架的最大碰撞力,需要在混合堆芯燃料组件安全评价中重点关注。
我国先进燃料组件的自主研发将有助于提升核电厂的经济性和安全性。在新型燃料组件入堆形成混合堆芯时,需要开展燃料组件相容性、中子学特性及抗震性能等方面的安全评价。针对新型燃料组件入堆换料方案中出现的混合堆芯条件,结合自主化新型燃料组件设计改进特点,开展堆芯燃料组件抗震分析,研究不同设计改进和不同装载方案对燃料组件抗震性能的影响。结果表明:均质堆芯条件下,随着单排组件数量的增多,组件格架的最大碰撞力和最大位移逐渐增大,选择单排15个组件开展抗震分析具有一定的保守性。混合堆芯条件下,格架刚度参数变化对入堆第1和第2循环格架最大位移影响较大,导向管壁厚增加和格架刚度减小等参数改进会引起第1循环边缘对称AA组件装载方案格架最大碰撞力的大幅增长,可能超过单排15个组件成为整个堆芯组件格架的最大碰撞力,需要在混合堆芯燃料组件安全评价中重点关注。
Email alert
RSS
摘要
HTML全文
PDF 245KB